





PN1.0/PN1.6MPa
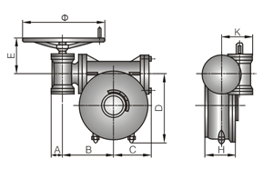
| 規格 | 尺寸 (am) | 重量 (kg) | ||||||||||||||
| mm | inch | A | B | C | D | L | H | D1 | N-Φ | K | E | N1-Φ1 | Φ 2 | G | n2-M | |
| 50 | 2 | 161 | 80 | 42 | 52.9 | 32 | 84.84 | 120 | 4-23 | 77 | 57.15 | 4-6.7 | 12.6 | 118 | - | 2.5 |
| 65 | 25 | 175 | 89 | 44.7 | 64.5 | 32 | 96.2 | 1362 | 4-265 | 77 | 57.15 | 4-6.7 | 12.6 | 137 | - | 3.2 |
| 80 | 3 | 181 | 95 | 45.2 | 78.8 | 32 | 61.23 | 160 | 8-18 | 77 | 57.15 | 4-6.7 | 12.6 | 143 | - | 3.6 |
| 100 | 4 | 200 | 114 | 52.1 | 10.4 | 32 | 70.80 | 185 | 4-245 | 92 | 69.85 | 4-10.3 | 15.77 | 156 | - | 4.9 |
| 125 | 5 | 213 | 127 | 54.4 | 123.3 | 32 | 82.28 | 215 | 4-23 | 92 | 69.85 | 4-10.3 | 18.92 | 190 | - | 7 |
| 150 | 6 | 226 | 139 | 55.8 | 155.6 | 32 | 91.08 | 238 | 4-25 | 92 | 69.85 | 4-10.3 | 18.92 | 212 | - | 7.8 |
| 200 | 8 | 260 | 175 | 60.6 | 202.5 | 45 | 112.89 76.35 |
295 | 4-25 4-23 |
115 | 88.9 | 4-14.3 | 22.1 | 268 | - | 13.2 |
| 250 | 10 | 292 | 203 | 65.6 | 250.5 | 45 | 92.40 | 357 | 4-29 | 115 | 88.9 | 4-14.3 | 28.45 | 325 | - | 19.2 |
| 300 | 12 | 337 | 242 | 76.9 | 301.6 | 45 | 105.34 | 407 | 4-29 | 140 | 107.95 | 4-14.3 | 31.6 | 403 | - | 32.5 |
| 350 | 14 | 368 | 267 | 76.5 | 333.3 | 45 | 91.11 | 467 | 4-30 | 140 | 107.95 | 4-14.3 | 31.6 | 436 | - | 41.3 |
| 400 | 16 | 400 | 309 | 86.5 | 389.6 | 512 72 |
100.47 102.42 |
515 525 |
4-26 4-30 |
197 | 158.75 | 4-20.6 | 33.15 | 488 | - | 61 |
| 450 | 18 | 422 | 328 | 105.6 | 440.51 | 512 72 |
88.39 91.51 |
565 585 |
4-26 4-30 |
197 | 158.75 | 4-20.6 | 38 | 539 | - | 79 |
| 500 | 20 | 480 | 361 | 131.8 | 491.5 | 642 82 |
96.99 101.68 |
620 650 |
4-26 4-33 |
197 | 158.75 | 4-20.6 | 41.15 | 593 | - | 128 |
| 600 | 24 | 562 | 459 | 152 | 592.5 | 702 82 |
113.42 120.46 |
725 770 |
4-30 4-36 |
276 | 215.9 | 4-22.2 | 50.65 | 816 | - | 188 |
| 700 | 28 | 624 | 520 | 163 | 695 | 6682 | 109.65 | 840 | 4-30 4-36 |
300 | 254 | 8-18 | 55 6335 | 895 | 4-M33 | 284 |
| 800 | 32 | 672 | 591 | 188 | 794.7 | 66 82 | 124 | 950 | 4-33 4-39 |
300 | 254 | 8-18 | 55 63.35 | 1015 | 368 | |
| 900 | 36 | 720 | 656 | 203 | 864.7 | 118 | 117.57 | 1050 | 24-33 | 300 | 254 | 8-18 | 75 | 1115 | 4-M30 | 713 |
| 1000 | 40 | 800 | 721 | 216 | 965 | 142 | 129.89 | 1160 | 24-36 | 300 | 254 | 8-18 | 85 | 1230 | 4-M33 | 864 |
注:DN50(2")~800(32")“A”型蝶閥(fá)分别适用於(yú)PN1.0/PN1.6MPa二種壓力級,表中每格有兩個
尺寸的分别表示PN1.0/PN1.6MPa二種壓力級連接尺寸。與閥門連
接的管法蘭連接尺寸參(cān)照法蘭連接尺寸表(圖一)。蝶閥上法蘭可通用於(yú)手動、蝸輪蝸杆傳動、電動、
氣動等。
表中DN50(2")~500(20")中D1和n-Φ尺寸爲(wèi)蝶閥(fá)本身安裝定位尺寸,其中DN50(2")~350
(14")的D1和n-Φ尺寸包容GB9112-99,DIN2501(德國(guó)), BS4504(英國(guó)),ISO2084、
ISO2531(國(guó)際(jì)标準),BS10-E(英國(guó)),ANSI1259(美國(guó))等法蘭連接标準。DN400(16")~500
(20")包容GB9112-88、DIN2501、ISO2084、BS4504法蘭(lán)連(lián)接标準。

N1.0/PN1.6MPa
| 規格 | 尺寸 (mm) | 重量 (kg) | |||||||||||||
| mm | inch | A | B | C | D | L | H | D1 | N-M | K | E | N1- Φ 1 | Φ 2 | G | |
| 50 | 2 | 161 | 80 | 42 | 52.9 | 32 | 88.38 | 120 | 4-M16 | 77 | 57.15 | 4-6.7 | 12.6 | 118 | 3.8 |
| 65 | 2.5 | 175 | 89 | 44.7 | 64.5 | 32 | 102.54 | 136.2 | 4-M16 | 77 | 57.15 | 4-6.7 | 12.6 | 137 | 4.2 |
| 80 | 3 | 181 | 95 | 45.2 | 78.8 | 32 | 61.23 | 160 | 8-M16 | 77 | 57.15 | 4-6.7 | 12.6 | 178 | 4.7 |
| 100 | 4 | 200 | 114 | 52.1 | 104 | 32 | 68.88 | 185 | 8-M16 | 92 | 69.85 | 4-10.3 | 15.77 | 206 | 9.0 |
| 125 | 5 | 213 | 127 | 54.4 | 123.3 | 32 | 80.36 | 215 | 8-M16 | 92 | 69.85 | 4-10.3 | 18.92 | 238 | 10.9 |
| 150 | 6 | 226 | 139 | 55.8 | 155.6 | 32 | 91.84 | 238 | 8-M20 | 92 | 69.85 | 4-10.3 | 18.92 | 266 | 14.2 |
| 200 | 8 | 260 | 175 | 60.6 | 202.5 | 45 | 92.40 | 295 | 12-M20 12-M24 |
115 | 88.9 | 4-14.3 | 22.1 | 329 | 18.2 |
| 250 | 10 | 292 | 203 | 65.6 | 250.5 | 45 | 105.34 | 357 | 12-M20 12-M24 |
115 | 88.9 | 4-14.3 | 28.45 | 393 | 26.8 |
| 300 | 12 | 337 | 242 | 76.9 | 301.6 | 45 | 91.11 | 407 | 12-M20 12-M24 |
140 | 107.95 | 4-14.3 | 31.6 | 462 | 40 |
| 350 | 14 | 368 | 267 | 76.5 | 333.7 | 45 | 112.89 76.35 |
467 | 12-M20 12-M24 |
140 | 107.95 | 4-14.3 | 31.6 | 515 | 56 |
| 400 | 16 | 400 | 309 | 86.5 | 390.1 | 51.2 72 |
100.47 102.42 |
515 525 | 16-M24 16-M27 |
197 | 158.75 | 4-20.6 | 33.15 | 579 | 96 |
| 450 | 18 | 422 | 328 | 105.6 | 441.2 | 51.2 72 |
88.39 91.51 |
565 585 | 16-M24 16-M27 |
197 | 158.75 | 4-20.6 | 38 | 627 | 122 |
| 500 | 20 | 480 | 361 | 131.8 | 491.5 | 64.2 82 |
96.99 101.68 |
620 650 | 16-M24 16-M30 |
197 | 158.75 | 4-20.6 | 41.15 | 696 | 202 |
| 600 | 24 | 562 | 459 | 152 | 592.5 | 70.2 82 |
113.42 120.46 |
725 770 | 16-M27 16-M33 |
276 | 215.9 | 4-22.2 | 50.65 | 821 | 270 |
注:DN50(2")~600(24")“LT”型蝶閥分别适用於PN1.0/PN1.6MPa二種壓力級,表中每格有兩個尺寸的分别表示PN1.0/PN1.6MPa二種壓力級連接尺寸。與閥門連
接的管法蘭連接尺寸參照法蘭連接尺寸表(圖一)。蝶閥上法蘭可通用於手動、蝸輪蝸杆傳動、電動、氣動等。
“LT”型蝶閥的結構、性能、零件的材質與“A”型均相同,區别在於“A”型可通過雙頭螺柱(或加長六角螺栓)對夾連接在兩管法蘭之間(即對夾式)。“LT”型除
通過兩面三刀組普通六角螺栓連接在兩管路之間外,還可以安裝在管端(即單夾式)作爲排空閥使用,但需在訂貨合同中注明管端使用。

手柄傳動裝置外形尺寸及重量
| 适用蝶閥 口徑 (mm) |
尺寸 (am) | 重量 (kg) | ||
| A | B | R | ||
| 50-100 | 266.7 | 32 | 51 | 0.5 |
| 125-150 | 345 | 32 | 51 | 0.8 |
| 200-300 | 353 | 45 | 76.5 | 1.3 |

蝸輪蝸杆傳動裝置外形尺寸及重量
| 型号 | 适用蝶閥
口徑(am) |
尺寸 (mm) | 重量 (kg) | |||||
| A | B | C | E | F | G | |||
| 3D-15 | 50-150 | 64 | 48 | 31 | 59 | 121 | 73 | 6 |
| 3D-50 | 200-250 | 80 | 70 | 39 | 78 | 163 | 89 | 8.5 |
| 3D-120 | 300-350 | 98 | 95 | 44 | 98 | 193 | 98 | 18 |

蝸輪蝸杆二級傳動裝置外形尺寸及重量
| 型号 | 适用蝶口徑am) | 尺寸 (am) | 重量 (kg) | |||||||
| A | B | C | D | E | Φ | H | K | |||
| 3D-30/250 | 400-450 | 57 | 178 | 121 | 220 | 174 | 300 | 125 | 112 | 30 |
| 3D-30/400 | 500-600 | 57 | 221 | 142 | 274 | 174 | 300 | 145 | 112 | 72 |
| 3D-60/800 | 700-800 | 67 | 244 | 183 | 351 | 165 | 400 | 157 | 143 | 133 |

DN50-350蝶閥電動裝置外形尺寸及重量
| 型号 | 适用蝶閥 口徑(mm) |
最大輸出轉矩 (N.m) |
輸出轉速 (r/min) |
電機功率 (kw) |
90°啓閉 時間(t) |
尺寸 (am) | 重量 (kg) | |||||||
| A | B | C | D | E | F | G | d | |||||||
| LQ5-1 | 50-80 | 50 | 1 | O.016 | 15 | 258 | 109 | 76 | 162 | 80 | 125 | 187 | 185 | 15 |
| LQl0-1 | 100 | 100 | 1 | 0.025 | 15 | 258 | 109 | 76 | 162 | 80 | 125 | 187 | 185 | 15 |
| LQ20-1 | 125-150 | 200 | 1 | 0.06 | 15 | 258 | 109 | 76 | 162 | 80 | 125 | 187 | 185 | 15 |
| LQ40-1 | 200 | 400 | 1 | 0.09 | 15 | 325 | 163 | 110 | 235 | 100 | 165 | 205 | 280 | 35 |
| LQ80-1 | 250-300 | 800 | 1 | 0.18 | 15 | 325 | 163 | 110 | 235 | 100 | 165 | 205 | 280 | 35 |
注:802系列電動裝置可用於(yú)戶外,並(bìng)有防爆型,控制器型号爲BFA。 | |||||||||||||||||||||||||||||||||||||||||||||||||||||||||||||||||||||||||||||||||||||||||||||||||||||||||||||||||||||||||||||||||||||||||||||||||||||||||||||||||||||||||||||||||||||||||||||||||||||||||||||||||||||||||||||||||||||||||||||||||||||||||||||||||||||||


注:SMC/HBC電動裝置可用於(yú)戶外,並(bìng)有防爆型,控制器型号爲LFK型。*H:SMC/HBC電動裝置與對夾式蝶閥連接用接盤高度。 | |||||||||||||||||||||||||||||||||||||||||||||||||||||||||||||||||||||||||||||||||||||||||||||||||||||||||||||||||